- Woonoppervlakte
- Circa 253 m²
- Perceeloppervlakte
- Circa 401 m²
- Bouwjaar
- Gebouwd in 1961
- Aantal kamers
- 11 kamers (7 slaapkamers)
Uniek object op een ruim perceel.
Aan de Lessestraat in Heemskerk staat deze unieke woning met ongekende mogelijkheden.
Ben je op zoek naar een ruime woning, werken aan huis of heb je andere wensen? Hier is alles mogelijk.
De woning is gelegen op een ruim perceel en heeft een multifunctionele indeling met meerdere slaapkamers, ideaal geschikt voor samengestelde gezinnen, mantelzorg, kleinschalige zorgverlening of aan huis gebonden beroepen.
Bouwjaar: ca. 1961
Woonoppervlakte: ca. 253m²
Overige inpandige ruimte: ca. 4m²
Externe bergruimte: ca. 33m²
Inhoud: ca. 910 m³
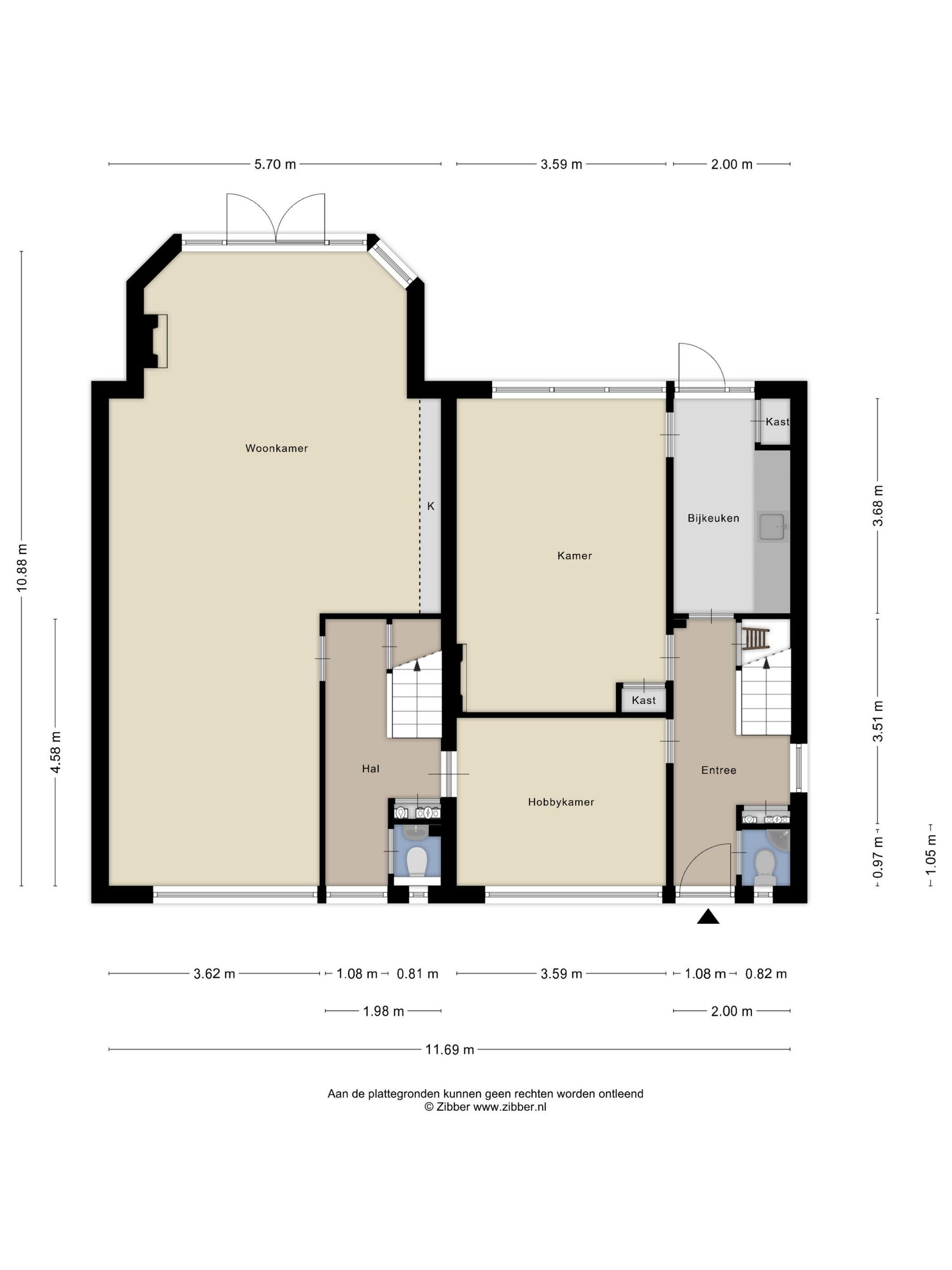
Begane grond:
Entree. Hal met meterkast, ingang (wijn)kelder, trapopgang en een toilet, hobbykamer, ruime werkkamer, luxe bijkeuken, hal met trapopgang, tweede toilet en een ruime uitgebouwde woonkamer met openslaande deuren naar de zonnige achtertuin.
Eerste verdieping:
Overloop, kastenkamer, eetkamer met een ruime, luxe open keuken met kookeiland, overloop, keurige badkamer met toilet, drie goed bemeten slaapkamers.
Tweede verdieping (bereikbaar via vaste trap)
Overloop, twee ruime slaapkamers en een inpandige berging.
De fraaie achtertuin is gelegen op het zuidwesten, hierdoor kunt u volop genieten van de middag/avond zon. De ruime garage is gelegen op het eigen perceel, in de aansluitende berging is de CV-ketel te vinden alsmede aansluiting van de droger/wasmachine.
Bijzonderheden:
- 8! (slaap)kamers en multifunctionele indeling.
- Energielabel C
- Mogelijkheid tot gelijkvloers wonen (meerdere kamers begane grond) of werken aan huis
- Hoekwoning en tussenwoning samengevoegd tot één unieke woning
- Zonnige tuin op het zuidwesten
- Privacyvolle ligging met voldoende parkeergelegenheid in de straat
- Rustige, kindvriendelijke buurt met alle voorzieningen nabij
- Vrijstaande, stenen garage voorzien van elektra;
Woning is uitermate geschikt voor:
- Wonen met mantelzorg.
- Kleinschalige zorginstelling of begeleid wonen
- Combinatie wonen & praktijk aan huis
- Meer-generatie huishouden
- Samengestelde gezinnen
- Ruimtelijk eengezinswoning met tuin op de zon
Jouw NVM-aankoopmakelaar komt op voor jouw belang en bespaart je tijd, geld en zorgen.
Adressen van collega NVM-aankoopmakelaars vindt je op Funda.
Overdracht
- Vraagprijs
- € 795.000 k.k.
- Status
- Beschikbaar
- Aanvaarding
- In overleg
Bouw
- Object type
- Eengezinswoning, hoekwoning
- Soort bouw
- Bestaande bouw
- Bouwjaar
- 1961
- Soort dak
- Zadeldak bedekt met pannen
Oppervlakte en inhoud
- Woonoppervlakte
- 253 m²
- Perceeloppervlakte
- 401 m²
- Inhoud
- 910 m³
- Overige inpandige ruimte
- 4 m²
- Externe bergruimte
- 33 m²
Indeling
- Aantal kamers
- 11 kamers (7 slaapkamers)
- Aantal badkamers
- 1 badkamer
- Badkamervoorzieningen
- Toilet, douche, wastafel, wastafelmeubel
- Aantal woonlagen
- 3 woonlagen
- Voorzieningen
- Tv-kabel, jacuzzi
Energie
- Energielabel
- C
- Energielabel registratie
- 07-08-2015
- Isolatie
- Dakisolatie, muurisolatie, dubbel glas, hr glas
- Verwarming
- Cv-ketel
- Warm water
- Cv-ketel
- Cv ketel
- Remeha combiketel gas gestookt uit 2024 (eigendom)
Buitenruimte
- Ligging
- In woonwijk
- Tuin
- Achtertuin, voortuin, zijtuin
- Afmetingen achtertuin
- 260 m² (13 meter diep en 20 meter breed)
- ligging tuin
- Gelegen op het zuidwesten en bereikbaar via achterom
Bergruimte
- Schuur / berging
- Vrijstaand steen
- Voorzieningen
- Voorzien van verwarming
Garage
- Soort garage
- Vrijstaand steen
- Capaciteit
- 1 auto
- Voorzieningen
- Elektra
Parkeergelegenheid
- Soort parkeergelegenheid
- Openbaar parkeren
Energieverbruik in Heemskerk
Energielabel deze woning
Energielabel C
Publicatie energielabel: 07-08-2015
Stroomverbruik per jaar
(Gemiddelde hoekwoning in Heemskerk)
Gasverbruik per jaar
(Gemiddelde hoekwoning in Heemskerk)
* Cijfers zijn afkomstig van het CBS en bedoeld als indicatie en kunnen verschillen voor deze woning
Indicatie hypotheeklasten
Eigen inleg:
Spaargeld / overwaarde
Rente:
Laagste 10-jaars rente
Laagste 10-jaars rente
2,78% - Centraal Beheer Groen... - NHG
3,04% - Centraal Beheer Groen... - 80%
Laagste 20-jaars rente
3,29% - Centraal Beheer Groen... - NHG
3,52% - Centraal Beheer Groen... - 80%
Laagste 30-jaars rente
3,41% - Centraal Beheer Groen... - NHG
3,7% - Argenta Groen Hypotheek... - 80%
Hypotheek:
Bruto maandlasten: € 0 p/m
Netto maandlasten: € 0 p/m
Hoe berekenen we dit?
Het rentepercentage is gebaseerd op de laagste 10 jaars vaste rente voor één hypotheekdeel. De vermelde rente (3.04% zonder NHG) is gecontroleerd op 27-02-2026. Deze berekening is gebaseerd op een annuïteitenhypotheek die volledig wordt afgelost, waarbij de maandlasten gedurende de gehele looptijd gelijk blijven. De werkelijke rente en netto maandlasten kunnen variëren, afhankelijk van uw persoonlijke situatie en de hypotheekverstrekker. Raadpleeg een financieel adviseur voor een nauwkeurige berekening en advies. Aan deze berekening kunnen geen rechten worden ontleend; het dient enkel als indicatie.
Documentatie
Kadastrale kaart
Leefomgeving
Plattegronden PDF
BAG uittreksel
Brochure
Energie-laber-203611391-1966sb-3
Vragenlijst-deel-b
Bezoek onze website
Bezichtiging
Bod uitbrengen
Waardebepaling
Zoekopdracht
Alles downloaden
Zonnegrenzen bekijken
Inwoners in Heemskerk
Cijfers voor postcodegebied 1966
- Totaal aantal inwoners
- 5100 inwoners
- Mannen
- 50%
- Vrouwen
- 50%
Inwoners in Heemskerk
Cijfers voor postcodegebied 1966
- tot 15 jaar
- 15%
- 15 tot 25 jaar
- 10%
- 25 tot 35 jaar
- 26%
- 45 tot 65 jaar
- 26%
- 65 en ouder
- 23%
Huishoudens in Heemskerk
Cijfers voor postcodegebied 1966
- Eenpersoons zonder kinderen
- 47%
- Meerpersoons zonder kinderen
- 25%
- Huishoudens zonder kinderen
- 72%
Huishoudens in Heemskerk
Cijfers voor postcodegebied 1966
- Huishoudens met één kind
- 9%
- Huishoudens met meerdere kinderen
- 19%
- Huishoudens met kinderen
- 28%
Woningen in Heemskerk
Cijfers voor postcodegebied 1966
- Woningen voor 1945
- 1%
- Woningen tussen 1945 en 1965
- 29%
- Woningen tussen 1965 en 1975
- 30%
- Woningen tussen 1975 en 1985
- 29%
- Woningen tussen 1985 en 1995
- 2%
Woningen in Heemskerk
Cijfers voor postcodegebied 1966
- Woningen tussen 1995 en 2005
- 1%
- Woningen tussen 2005 en 2015
- 8%
- Woningen na 2015
- 1%
- Huurwoningen
- 60%
- Koopwoningen
- 40%
Overige in Heemskerk
Cijfers voor postcodegebied 1966
- Gemiddelde WOZ waarde
- € 203.000,-
- Personen onder de 65 met uitkering
- 13%
Overige in Heemskerk
Cijfers voor postcodegebied 1966
- Adressen per km²
- 3010
- Stedelijkheid (schaal 1 op 5)
- 100%
Korte feiten over Heemskerk
Heemskerk is een plaats en gemeente in Midden-Kennemerland[3] in de Nederlandse provincie Noord-Holland. De gemeente telt 39.452 inwoners (22 november 2024, bron: CBS) en heeft een oppervlakte van 31,7 km² (waarvan 4,3 km² water). Binnen de gemeentegrenzen liggen geen andere kernen. Alleen de buurtschappen Noorddorp en Heemskerkerduin zouden hieronder gerekend kunnen worden.
Bakker Makelaardij
Indien u vragen heeft of u wilt een bezichtiging inplannen, dan kunt u gebruik maken van het formulier hiernaast. Er zal daarna op korte termijn contact met u worden opgenomen.
Bootsmanszij 2
1941 JJ, Beverwijk
0251 - 291 129 info@bakkermakelaardij.nl www.bakkermakelaardij.comContact opnemen
Bakker Makelaardij
Bakker Advies presenteert een allesomvattend dienstenpakket!
Bakker Makelaardij, samen met Bakker Hypotheken, Bakker Administratie en onze verzekeringsexperts, zijn gebundeld op één locatie. Dit stelt klanten in staat om op één locatie een volledig advies te verkrijgen over verzekeringen, investeringen, hypotheken en assistentie in de vastgoedwereld, een enorm voordeel!
Ons team bij Bakker Makelaardij, onder leiding van de erkende NVM-makelaar Willem Bakker en zijn collega Lars van Roijen, is een krachtige combinatie van vakmensen. Wat houdt dit voor u in? Het garandeert dat elk aspect met precisie wordt afgehandeld. Of het nu gaat om bemiddeling bij aankoop, verkoop, huur of verhuur, grondige taxaties of deskundig advies over de sterke en zwakke punten van een eigendom. Onze klanten blijven het middelpunt; zij bepalen de criteria en stellen de kaders.
Nieuwste reviews
-
Touwslagerstraat 3
Bakker Makelaardij is een fijn kantoor om te komen, heel gastvriendelijk en sociaal.De makelaars zijn erg deskundig.Zeker een aanrader.
-
Kruisweg 4
Uitstekende makelaar welke duidelijk is qua communicatie en afspraken. Bezichtigingen zijn uitstekend verlopen. Een aanrader voor iedereen d...
-
Heemskerkerweg 177
Bakker makelaardij zouden wij iedereen aanraden. Ze nemen alle tijd voor je en stoppen er veel energie in om je huis zo goed mogelijk te ver...